作為20世紀80年代發展起來的破碎機型,立軸沖擊式破碎機(簡稱沖擊破)已在砂石場廣泛應用,被用戶公認為的制砂設備,通常直稱為制砂機。
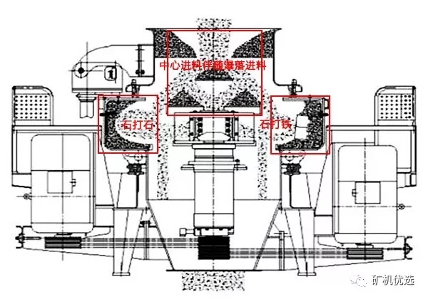
立軸沖擊式破碎機以葉輪直徑(或轉子直徑*電機功率等)作為規格的劃分,按葉輪形式可分為開式和閉式,按外殼是否裝有反擊板可分為石打石和石打鐵兩種破碎方式,從而組合為4種基本形式。


從際上來看,立軸沖擊式破碎機的技術體現在3個方面:靈活的機械性能、的材料和零件設計,的粉塵控制。對內市場來講,至少前兩者是共同的。
開式葉輪將允許100~150mm的進料粒級,而內至今沒有商品化的開式葉輪立軸沖擊式破碎機提供給市場。因此在砂石場,內立軸沖擊式破碎機僅能作為三級或四級破碎設備,而不能如外那樣作為二級破碎設備。
外公司已有葉輪直徑達1.6m,配套的電機功率高達1103KW的設備,適合各種特大的生產線,而內的立軸沖擊式破碎機規格很少過1.2m。

的葉輪通道可以在3~7個間變化,有不同構造與不同轉速等的配合以適應不同的物料及進料粒級,達到較高的制砂量和需要的細度模數。而內的閉式轉子基本上固定為4個通道,很少變化,因此對不同工況的適應性較差。
由于在立軸沖擊式破碎機上設計了物料的料墊來取代襯板作為易損件。因而,提高件的使用壽命可分解為零件設計和材料應用2個方面。例如:代葉輪設計曾采用外徑堆焊材料進行保護,現在的零件設計已采用料墊保護方式,取消了價格昂貴的鉻合金鋼堆焊。

際上的立軸沖擊式破碎機制造商已普遍采用陶瓷制作零件,而不僅僅是硬質合金碳化鎢和高鉻鑄鐵。陶瓷材料不但可耐較高的溫度,而且有好的抗腐蝕性,因而在帶有相當濕度的物料高速沖擊時,其性能良好。內的立軸沖擊式破碎機目前采用硬質合金和高鉻鑄鐵材料,質量不穩定,易腐蝕和磨損,且易被金屬件擊碎。由于砂石場使用的破碎設備內外產品差距,故內市場,如規模較大的砂石場仍是進口設備占多數。